STUDIOBÜHNE.gera

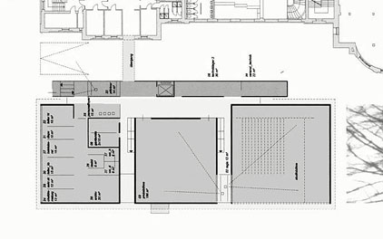
Den funktionalen Anforderungen und den Begrenzungen des Baufeldes folgend wird der neue Baukörper aus der Parkachse nach Norden verschoben und parallel zum Haupthaus platziert - die Studiobühne mit ihrem Bezug zur Freifläche sitzt jedoch ihrer Bedeutung entsprechend in der Achse des Parks. Der Eingang liegt funktional bedingt dem Park zugewandt. Der Bezug zur Küchengartenallee wird durch die farblich / materielle Hervorhebung des Bühnenkörpers sowie den hervorgehobenen Schriftzug (verglast/nachts beleuchtet) realisiert.

Als vorgelagerter Abschluß des Küchengartens wirkt ein Glaskörper, dessen besonderer Inhalt über eine zweischichtige Fassadenwirkung nach außen getragen wird. Der dreigeteilte Baukörper (Verwaltung/ Probebühne/ Studiobühne) wird mit einer Stahl-Glas-Struktur umhüllt, die zum einen die dahinterliegenden Körper durchscheinen läßt zum anderen eine spiegelnde Oberfläche (bedrucktes Glas, linear gehalten) besonders tagsüber dominierend präsentiert. Die Fassadenwirkung wird durch den Effekt des Durchscheinens, der Zweischichtigkeit unterschiedlicher Farben/ Materialien/ Strukturen erzielt - die Glasfassade ist einfach vorgestellt und komplett durchlüftet auch vor den Fenstern des Verwaltungsbereiches, wo die äußeren Glasflächen nur teilweise die Fensterflächen überdecken.

Im Bereich der Bühnenöffnung ist die Glasfläche ausgespart. Integriert sind Beleuchtungselemente, die abends besonders die Studiobühne samt Schriftzug nach außen und zur Küchengartenallee "ins rechte Licht" setzen (u.U. farbig dimbar/ veränderbar) - das Gebäude wirkt abends als komplex gestalteter Lichtkörper, der nicht nur dezent auf sich aufmerksam macht, sondern auch den umliegenden Parkbereich illuminiert und abends "öffentlich" macht.